Offering:
Government-assisted housing to qualified applicants. Rent is based on 30% of income.
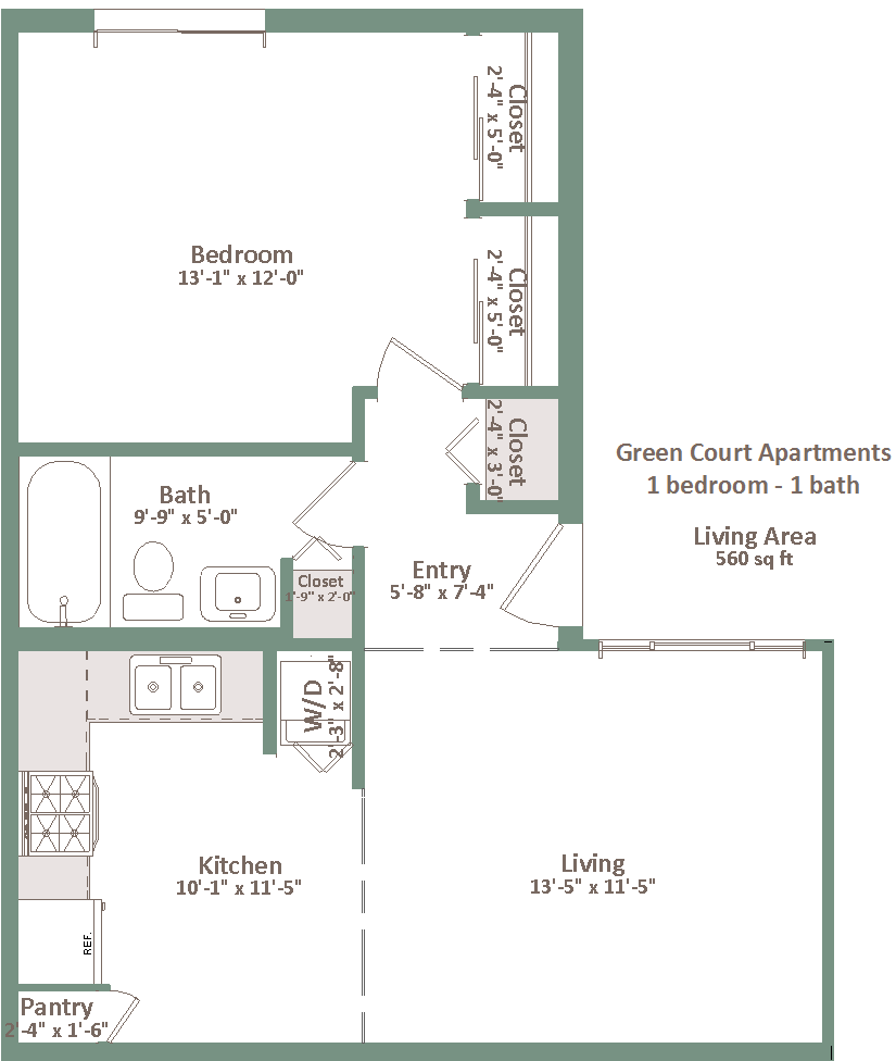
1 bedroom apartments - Senior
Now accepting applications
*62 years of age or older or sight, hearing, mobility impaired
Get Application1 bedroom apartments - Family
Not accepting applications at this time2 bedroom apartments
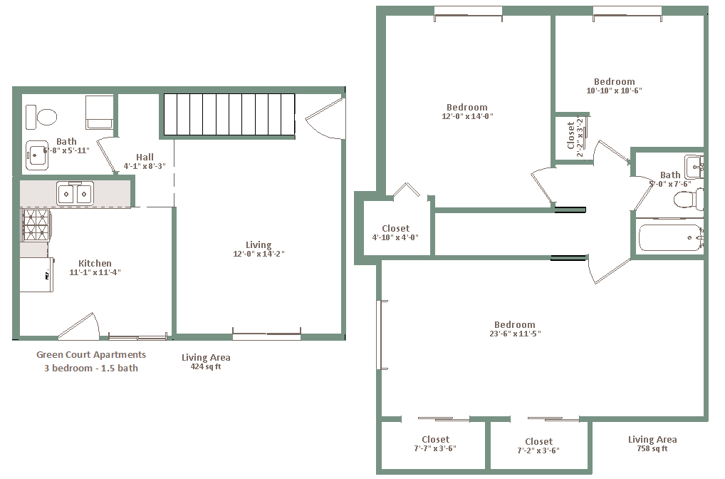
Not accepting applications at this time3 bedroom apartments
Not accepting applications at this time
Renter's Insurance
To protect your belongings in case of fire, theft, or damage, you need your own insurance policy, called an HO4 renter's insurance policy. You also need liability coverage for damages caused by negligence. Contact your Insurance agent today. If you do not have an agent and don’t wish to look into other companies you can apply through Assurant Insurance.
Property Features
Pets Welcome
Dogs and cats allowed, pet policies and breed restrictions apply
Offstreet
Parking
One free spot included with rent
Emergency Maintenance
24-Hr Emergency Maintenance
Beautiful Grounds
Park-like grounds including large playground
Unit Amenities
- Hot water
- Water & sewer
- Electric appliances
- Carpeting
- Off-street parking
- Laundry facilities
- Intercom controlled entry
- Community rooms
- Garbage disposal
- Park-like grounds
- Cable offered
- Professional management
- On-site management & maintenance services
- Utilitly Allowance
